MÜLLHEIM

ECOLE ET SALLE POLYVALENTE MüLLHEIM, 1e PRIX

 

Type concours sur préqualification Maître d’ouvrage Ecole primaire Müllheim, TG Programme Construction d’une salle polyvalente, d’une école et d’un jardin d’enfants à Müllheim, TG Surface 7’450 m2 SB Volume 34’750 m3 Planification 2019 – 2025 En collaboration avec Management de la construction: Forster + Burgmer AG, Kreuzlingen, Architecte paysagiste : Andreas Geser Landschaftsarchitekten AG Zurich, Ingénieur civil: Ingenieurbüro A. Keller AG, Weinfelden, Ingénieur bois: wh-p Ingenieure AG, Basel, CVSE: Planelement GmbH, Winterthur, Electro: Schäfer Partner AG, Lenzburg, Images: Indievisual Team NYX Nathanaël Chollet, Yann Gramegna, Rahmeta Bajra, Dorian Bürgy, Alain Glasson, Camille Wetzel, Torsten Wieders Photographies Roman Weyeneth

 

Presse:

08.10.2021 St.Galler Tagblatt

25.10.2019 St.Galler Tagblatt

TRÈFLE

 

L’extension du complexe scolaire primaire se fait par deux nouveaux bâtiments implantés librement qui, avec l’école existante, forment un ensemble généreux. Des espaces intermédiaires fluides, des accès clairement identifiables et une gradation différenciée des hauteurs intègrent harmonieusement les deux volumes bâtis dans le quartier d’habitation. Le nouveau bâtiment scolaire renforce la cour existante en tant que centre commun, tandis que la salle polyvalente affirme sa propre présence à un carrefour de cheminements et complète ainsi l’ensemble sur le plan urbain.

 

L’école organise l’ensemble des salles de classe aux étages supérieurs et utilise le rez-de-chaussée pour des espaces flexibles tels que les salles de musique et des enseignants. Le foyer, espace central et multifonctionnel, définit la structure intérieure du bâtiment et est complété par la cage d’escalier située en façade. Les salles de classe sont disposées aux angles du bâtiment et bénéficient d’un éclairage naturel sur deux côtés. Les salles de groupe sont fonctionnellement reliées aux salles de classe et équipées de portes pliantes toute hauteur, permettant une ouverture modulable vers le foyer adjacent. Le jardin d’enfants, installé dans l’annexe du rez-de-chaussée, se compose de trois unités indépendantes organisées autour d’un hall travesant commun et offrant de multiples relations spatiales.

 

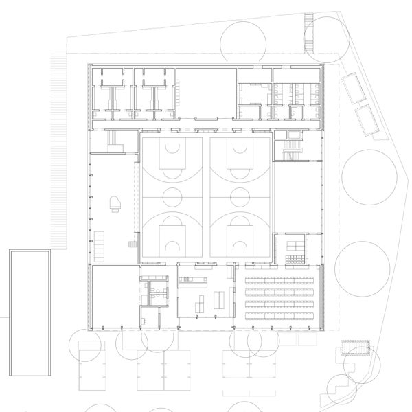
La salle polyvalente s’organise autour d’une nef principale continue, flanquée de bâtiments annexes, permettant une grande diversité d’usages. Le foyer, la salle polyvalente et la scène, dont l’agencement s’enchaîne en enfilade, constituent ensemble un véritable univers théâtral. La cuisine située dans l’annexe côté sud, dessert la salle polyvalente ainsi que la salle attenante. Côté nord, les locaux annexes dédiés au sport sont reliés par un couloir au foyer, à la salle polyvalente et à la scène. La scène, équipée d’une cloison coulissante en bois, peut être utilisée de différentes manières selon les besoins et les événements.

 

Les nouveaux bâtiments reposent sur des structures porteuses hybrides robustes en bois, associées à du béton coulé en place et à des fenêtres bois-métal équipées de stores extérieurs textiles. Des tons de gris sobres, aux réflexions variées, renforcent le lien avec la végétation et différencient l’expression intérieure et extérieure. Des matériaux unifiés instaurent un dialogue entre les deux volumes, tandis que des auvents en porte-à-faux signalent les accès. À l’intérieur, le béton, le bois et le verre soulignent une structure durable et apaisée.

 

 

 


Ce site utilise des cookies afin de vous offrir une expérience optimale de navigation. En continuant de visiter ce site, vous acceptez l’utilisation de ces cookies.

J’ai comprisEn savoir plus