MÜLLHEIM

SCHULHAUS MÜLLHEIM, 1. PREIS

 

Verfahren Studienauftrag nach Präqualifikation Bauherrschaft Primarschule Müllheim, TG Programm Neubau Mehrzweckhalle, Kindergarten- und Schulräume in Müllheim Fläche 7’450 m2 GF Volumen 34’750 m3 Planung 2019 – 2025 In Zusammenarbeit mit Baumanagement: Forster + Burgmer AG, Kreuzlingen, Landschaftsarchitektur: Andreas Geser Landschaftsarchitekten AG Zürich, Tragwerk Massivbau: Ingenieurbüro A. Keller AG, Weinfelden, Tragwerk Holzbau: wh-p Ingenieure AG, Basel, Haustechnik: Planelement GmbH, Winterthur, Elektroplaner: Schäfer Partner AG, Lenzburg, Bilder: luce. Team NYX Nathanaël Chollet, Yann Gramegna, Rahmeta Bajra, Dorian Bürgy, Alain Glasson, Camille Wetzel, Torsten Wieders Fotografien Roman Weyeneth

 

Presse:

08.10.2021 St.Galler Tagblatt

25.10.2019 St.Galler Tagblatt

 

 

TRÈFLE

 

Die Erweiterung der Primarschulanlage entsteht durch zwei frei gesetzte Neubauten, die zusammen mit dem bestehenden Schulhaus ein grosszügiges Ensemble bilden. Fliessende Zwischenräume, klare Adressen und eine differenzierte Höhenstaffelung integrieren die beiden Baukörper harmonisch in das kleinteilige Quartier. Das neue Schulhaus stärkt den bestehenden Schulhof als gemeinsames Zentrum, während die Mehrzweckhalle an einer markanten Wegekreuzung eine eigene Präsenz erhält und das Ensemble stadträumlich ergänzt.

 

Die Schule organisiert sämtliche Unterrichtsräume in den Obergeschossen und nutzt im Erdgeschoss flexible Räume wie Musik- und Gruppenräume, die durch ein modulares System anpassbar bleiben. Das Foyer, ein zentraler, multifunktionaler Raum, definiert die innere Struktur des Gebäudes, das durch das fassadenseitige Treppenhaus ergänzt wird. Die Klassenzimmer sind in der Gebäudeecke mit Doppelbelichtung angeordnet. Die Gruppenräume sind mit den Klassenzimmern funktional verbunden und mit raumhohen Falttüren ausgestattet, welche die Schaltbarkeit zum anschließenden Foyer ermöglichen. Der Kindergarten im Annexbau des Erdgeschosses bildet drei eigenständige Einheiten mit gemeinsamer Halle und vielfältigen räumlichen Beziehungen.

 

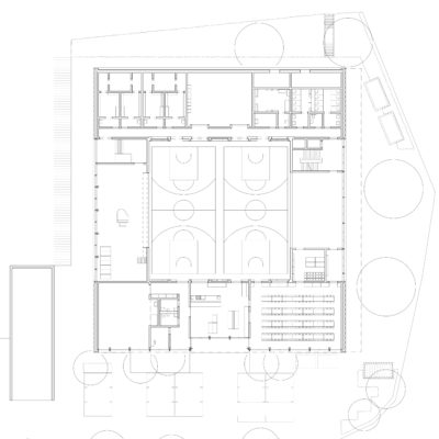
Die Mehrzweckhalle gliedert sich in ein durchgehendes Hauptschiff mit flankierenden Annexbauten, wodurch vielseitige Nutzungen ermöglicht werden. Das Foyer, die Mehrzweckhalle und die Bühne, deren Anordnung sich als Enfilade verbindet, bilden in ihrer Gesamtheit eine Theaterwelt. Die im südseitigen Anexbau liegende Gastroküche versorgt die Mehrzweckhalle und den angeschlossenen Mehrzweckraum. Nordseitig werden die Sportnebenräume durch einen Korridor mit Foyer, Mehrzweckhalle und Bühne verbunden. Die mit einer hölzernen Schiebetrennwand ausgestattete Bühne findet je nach Nutzung für verschiedene Anlässe Verwendung. Im ersten Stockwerk gegenüber der Bühne befindet sich die Galerie.

 

Die Neubauten setzen auf robuste Holzhybridtragwerke, kombiniert mit doppelschaligem Ortbeton und Holz-Metall- Fenstern mit textilen Ausstellmarkisen. Zurückhaltende Grautöne mit unterschiedlichen Reflexionen stärken den Bezug zur Vegetation und differenzieren die Innen- und Aussenwirkung. Einheitliche Materialien schaffen einen Dialog zwischen den beiden Baukörpern, während auskragende Vordächer die Adressen markieren. Innen betonen Beton, Holz und Glas eine langlebige und ruhige Struktur.

 

 

 


Diese Seite verwendet Cookies. Wenn Sie die Seite weiter nutzen, stimmen Sie der Cookie-Nutzung zu.

AkzeptierenMehr infos