HITZKIRCH

MEHRZWECKHALLE HITZKIRCH, 1. PREIS

 

Verfahren Studienauftrag nach Präqualifikation Bauherrschaft Gemeinde Hitzkirch, LU Programm Neubau Dreifachsport- und Mehrzweckhalle in Hitzkirch Fläche 5’470 m2 GF Volumen 30’640 m3 Planung 2019 – 2025 In Zusammenarbeit mit Landschaftsarchitektur: SKALA Landschaft Stadt Raum Zürich, Tragwerk: WaltGalmarini AG Zürich Team NYX Nathanaël Chollet, Yann Gramegna, Rahmeta Bajra, Andrea Linke, Benjamin Melly, Mélanie Althaus-Siegel Fotografien Roman Weyeneth

 

Presse:

27.02.2020 Luzerner Zeitung

26.02.2020 Seetaler Bote

 

Podium

 

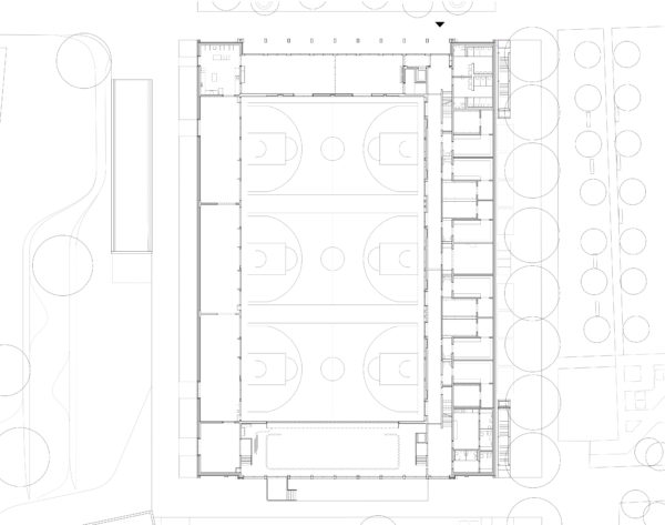
Die neue Dreifachturnhalle wird in ein heterogenes Schulareal eingefügt, das historisch aus verschiedenen Gebäudetypen gewachsen ist. Die parallele Setzung des Gebäudes zur Sekundarschule stärkt die Nord-Süd-Ausrichtung und klärt die bestehende Wegestruktur. Abstand zu Wohnbebauung und Friedhof sorgt für Rücksicht im Massstab. Der eingeschossige Baukörper entlang des Schulwegs wertet den öffentlichen Raum auf, während klare Volumenabstufungen den grossen Baukörper harmonisch einbinden.

Die Halle ist als Abfolge von Foyer, Haupthalle und Bühne organisiert, flankiert von zwei Annexbauten, die sämtliche dienenden Nutzungen aufnehmen. Ein kreuzweise gestapeltes Wandscheibensystem erzeugt klare Raumrichtungen und differenzierte Aussenbezüge. Die Haupthalle bildet das zentrale Volumen mit Tribüne, während eingeschossige und zweigeschossige Ergänzungsbauten sie räumlich fassen. Flexible Raumtrenner, intuitive Erschliessungswege und vielseitig nutzbare Kompartimente ermöglichen unterschiedliche Sport-, Kultur- und Veranstaltungsformate.

Die Mischbauweise aus Ortbeton und Holz schafft Robustheit und angenehme Akustik. Ein massiver Sockel trägt die beanspruchten Bereiche, darüber spannt ein effizientes Holztragwerk mit sichtbaren Brettschichtholzträgern. Innen prägen Beton, Fichtenholz und geschliffener Hartbeton eine ruhige, langlebige Atmosphäre; silberne Anstriche veredeln
Nebenräume und verbinden Materialien. Aussen erhält die Halle eine metallische, leicht reflektierende Fassadenhaut mit horizontalen Bändern, die auf Vegetation reagiert und einen nüchtern-eleganten Ausdruck erzeugt.

 

 

 


Diese Seite verwendet Cookies. Wenn Sie die Seite weiter nutzen, stimmen Sie der Cookie-Nutzung zu.

AkzeptierenMehr infos